グッドリビング株式会社

お問い合わせ・資料請求
イベント
見学会
来場予約 資料請求
お問い合わせ
こちら

2026/5月末OPEN予定!◆豊橋市牟呂公文町◆【平屋生活】

販売中

エリア
愛知県| 愛知県豊橋市牟呂公文町7-27
販売価格
3,550万円(税込)
間取り
3LDK
種目
新築戸建
建物面積
72.87㎡
土地面積
160.04㎡

■物件の特徴
【断熱等級6】◆住まいに快適ないごこちをつくります◆
◆玄関ホールに独立洗面台を設置*家族のプライバシーも確保
◇家事動線を考えコンパクトでも無駄の無い間取り
◆WIC・土間収納・玄関収納など収納力豊富
◇Wi-Fiニッチ収納でネット環境も快適

■周辺環境の特徴
◆牟呂小学校まで徒歩6分*若葉幼稚園まで徒歩7分
◇スギ薬局牟呂店まで徒歩10分*生活住環境の良い立地
◆豊橋市民病院まで車で約8分

【 売主物件 】
ご融資から土地探し、
物件の詳細のご案内などのご相談は店舗にて承ります。

周辺環境

◆牟呂小学校まで徒歩6分*若葉幼稚園まで徒歩7分
◇スギ薬局牟呂店まで徒歩10分*生活住環境の良い立地
◆豊橋市民病院まで車で約8分

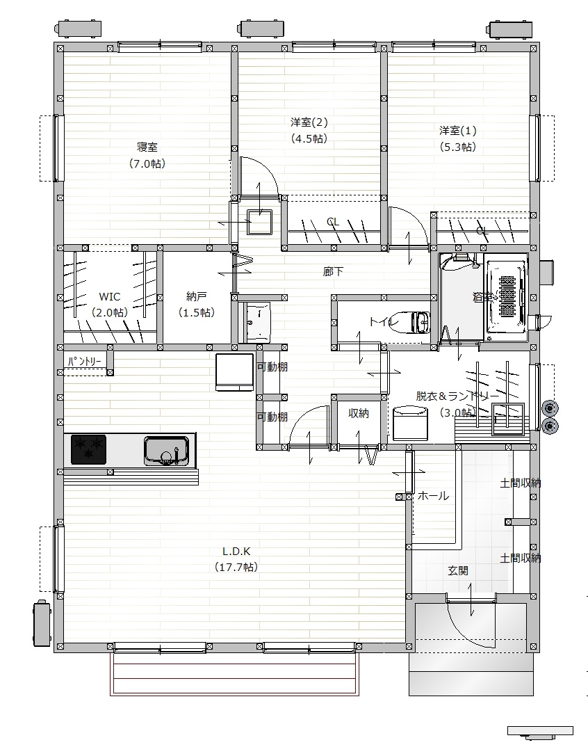
間取り、土地区画図

周辺地図

詳細情報

最寄駅 JR東海道本線「豊橋」
豊鉄バス13分「東脇」
徒歩8分
学区 豊橋市立牟呂小学校
豊橋市立牟呂中学校
間取り 3LDK
土地面積 160.04㎡
建物面積 72.87㎡
建物構造規模 木造1階建
築年月(竣工月) 2026年5月
駐車場 3台
建ぺい率/容積率 60%・200%
接道状況 北東6m幅(接道幅8m)
地目 宅地
土地権利 所有権
用途地域 1種中高
現況 建築中
取引態様 売主
引渡し 2026年6月予定(相談)
設備 公営水道、本下水、都市ガス
特徴 省エネルギー対策 / フラット35Sに対応 / 地盤調査済 / 年内引渡可 / 駐車3台以上可 / 省エネ給湯器 / 市街地が近い / システムキッチン / 浴室乾燥機 / 陽当り良好 / 全居室収納 / 閑静な住宅地 / LDK15畳以上 / 前道6m以上 / 整形地 / シャワー付洗面化粧台 / 対面式キッチン / バリアフリー / 浴室1坪以上 / 温水洗浄便座 / 南庭 / 床下収納 / TVモニタ付インターホン / 節水型トイレ / 全居室フローリング / パントリー(食器・食品の収納庫) / ウォークインクローゼット / 天井高2.5m以上 / IHクッキングヒーター / 全居室複層ガラスか複層サッシ / 都市ガス / シューズインクローク / 小学校 徒歩10分以内 / 平坦地 / 開発分譲地内 / 区画整理地内 / 食器洗乾燥機 / 周辺交通量少なめ / 整備された歩道 / 浄水器 / スマートキー
諸条件・相談 売主物件だから仲介手数料0円です♪
情報登録日 2026年 2月 6日
情報更新予定日 2026年 4月 3日
物件一覧へ

お問い合わせ・資料請求・見学予約

「資料請求」を行う場合、お住まいのご住所を必ずご入力の上、お進みください。
「見学予約」を行う場合、ご連絡のつくお電話番号を必ずご入力の上、お進みください。
確認ができない場合、「資料請求」「見学予約」がお受けできない場合がございます。あらかじめご了承ください。

豊橋店

第一希望日

第二希望日

 - 
※お問い合わせの内容の中にURLが含まれていますと送信できませんので、テキストのみご記入ください。

個人情報の取扱いについては「プライバシーポリシー」をご参照ください。

PAGE TOP