グッドリビング株式会社

お問い合わせ・資料請求
イベント
見学会
来場予約 資料請求
お問い合わせ
こちら

【2026/2/7GRANDOOPEN!】◆碧南市エリアに平屋誕生!◆予約受付中‼

販売中

エリア
愛知県| 愛知県碧南市金山町5-89-2
販売価格
3,380万円(税込)
間取り
3LDK
種目
新築戸建
建物面積
73.70㎡
土地面積
164.33㎡

■物件の特徴 
◆土間収納・トールキャビネット・カップボード付で収納豊富
◆掃き出し窓【防犯ガラス】を使用でセキュリティ強化
◇【断熱等級5】高性能樹脂窓APW 330で住まいを快適断熱化
◆駐車スペース4台可能☆彡
【モデルハウス仕様】エアコン2台(寝室、リビング)全室照明・カーテン、カーテンレール完備

■周辺環境の特徴
◆ドミー新川店まで徒歩8分*商業施設多数あり
◇最寄りのコンビニ至近*生活の利便性充実
◆病院・図書館近く子育てに最適な環境

【売主物件】
ご融資から土地探し、物件の詳細のご案内などのご相談は店舗でも可能です。

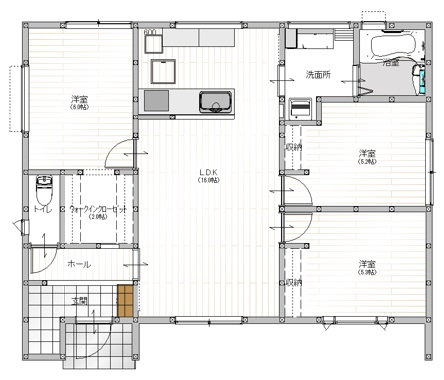
間取り、土地区画図

周辺地図

詳細情報

最寄駅 名鉄三河線「北新川」14分
学区 碧南市立新川小学校
碧南市立新川中学校
間取り 3LDK
土地面積 164.33㎡(49.71坪)
建物面積 73.30㎡(22.29坪)
建物構造規模 木造1階建
築年月(竣工月) 2026年2月
駐車場 車3台以上可
建ぺい率/容積率 60%・200%
地目 宅地
土地権利 所有権
地勢 平坦
用途地域 準工業
現況 完工
取引態様 売主
引渡し 2026年3月予定
設備 公営水道、本下水、個別LPG
諸条件・相談 売主物件だから仲介手数料0円です♪
情報登録日 2025年11月13日
情報更新予定日 2026年 2月 6日
物件一覧へ

お問い合わせ・資料請求・見学予約

「資料請求」を行う場合、お住まいのご住所を必ずご入力の上、お進みください。
「見学予約」を行う場合、ご連絡のつくお電話番号を必ずご入力の上、お進みください。
確認ができない場合、「資料請求」「見学予約」がお受けできない場合がございます。あらかじめご了承ください。

半田店

第一希望日

第二希望日

 - 
※お問い合わせの内容の中にURLが含まれていますと送信できませんので、テキストのみご記入ください。

個人情報の取扱いについては「プライバシーポリシー」をご参照ください。

PAGE TOP