こちら
内野台1丁目【ウッドデッキ×土間収納の家】
販売中

- エリア
- 静岡県| 浜松市浜名区内野台1丁目29-1の南側
- 販売価格
- 3,650万円(税込)
- 間取り
- 4LDK+S
- 種目
- 新築一戸建て
- 建物面積
- 101.84㎡ 30.80坪
- 土地面積
- 170.81㎡ 51.67坪
■物件の特徴
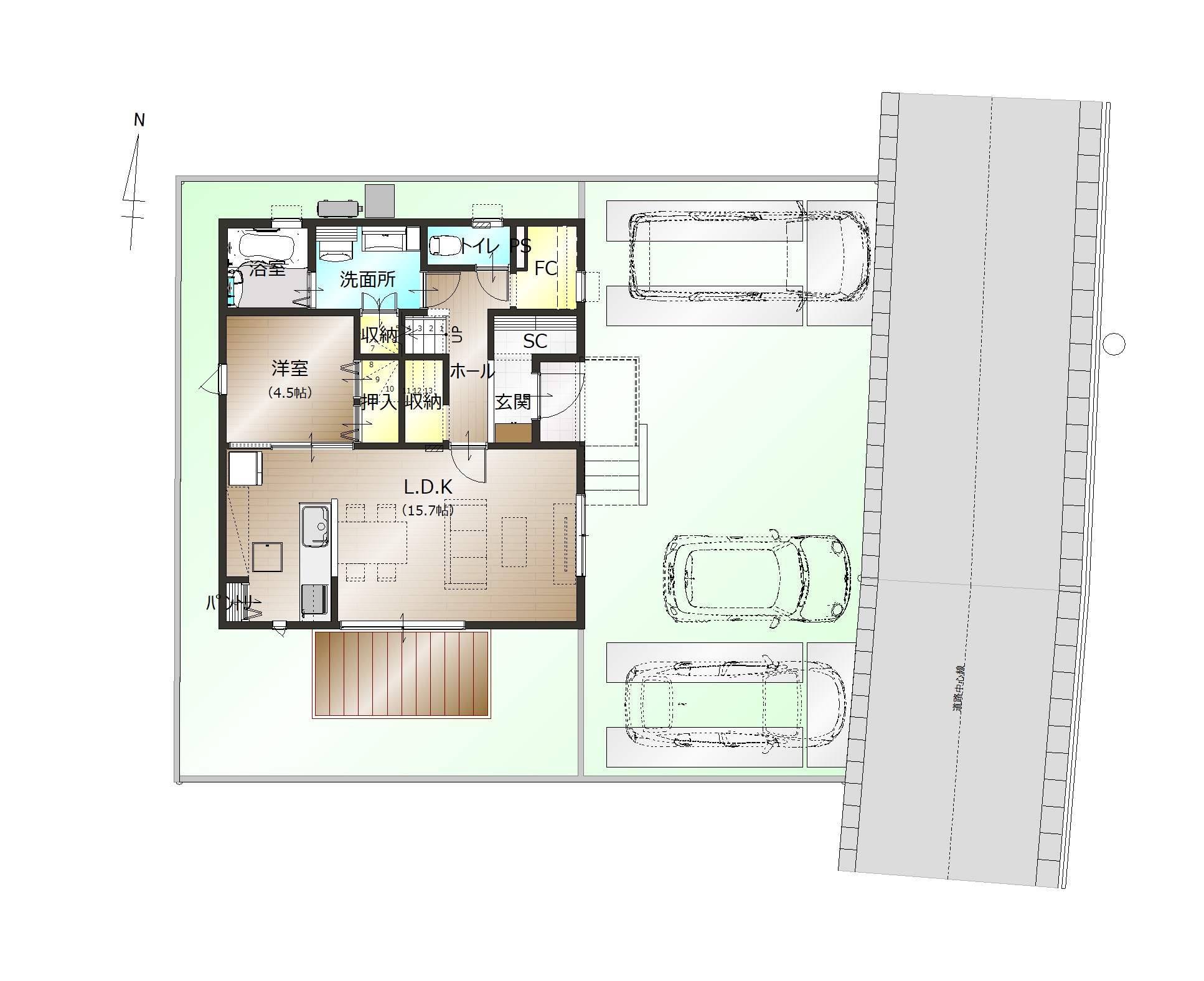
外構工事まで完了してお引渡しいたします。広い南側のお庭にはウッドデッキがあるのでBBQやビニールプールも楽しめます。倉庫やガレージなども検討できる敷地の広さ。実際に子育て中のママが経験した『こんなとき、ここにあれが欲しい』を叶えた、忙しいママも嬉しいラク家事プラン。階段下収納・土間収納・押入・WICなど収納が多いのも特徴です。
■周辺環境の特徴
浸水履歴のない水害も安心のエリア。内野小学校まで約16分。環状線にもすぐ出られる立地で、新東名IC方向へも行きやすい交通も便利な場所です。現地をご見学いただきながら気になる周辺環境もお確かめいただけます。
【この物件は売主物件です】グッドリビング施工の売主物件ですので仲介手数料不要です。
【ご相談できる店舗があります】ご融資先のご相談から、物件のご案内などは店舗でも可能です。お気軽にご来場下さい。
【担当より】\根強い人気の内野台エリア/ 浸水履歴のない高台の立地と、見晴らしのいい暮らしはおすすめです。一種低層エリアで隣地との離れも十分なので、ご近所への騒音や目線を気にせず生活できるのもメリットです。








間取り、土地区画図


周辺地図
詳細情報
最寄駅 | 遠州鉄道 積志駅 |
---|---|
学区 | 浜松市立 内野小学校 浜松市立 浜名中学校 |
間取り | 4LDK+S |
土地面積 | 170.81㎡ 51.67坪 |
私道面積 | なし |
建物面積 | 101.84㎡ 30.81坪 |
建物構造規模 | 木造2階建て |
築年月(竣工月) | 2026年1月 |
駐車場 | 4台(車種による) |
建ぺい率/容積率 | 50% 80% |
接道状況 | 東側 4.5m幅員(接道幅12.2m) |
地目 | 宅地 |
土地権利 | 所有権 |
地勢 | 道路面より階段あり |
用途地域 | 一種低層 |
現況 | 建築中 |
取引態様 | 売主 |
引渡し | 要相談/完成後引き渡し |
設備 | 公営水道 オール電化 本下水道 |
特徴 | 屋根付きウッドデッキ×土間収納の家 コトハグ-子とはぐくむ家- 一邸一邸、丁寧に計画された建物プラン。子育て世代のママスタッフが考えた家事がしやすい、収納力のある間取り。 |
諸条件・相談 | 融資・金利等の銀行関係や保険・相続等のご相談はもちろん、太陽光や申請によって得られる助成金など、家づくりのすべてご相談ください。 |
情報登録日 | 2025.10.4 |
情報更新予定日 | 2025.12.24 |
お問い合わせ・資料請求・見学予約
「資料請求」を行う場合、お住まいのご住所を必ずご入力の上、お進みください。
「見学予約」を行う場合、ご連絡のつくお電話番号を必ずご入力の上、お進みください。
確認ができない場合、「資料請求」「見学予約」がお受けできない場合がございます。あらかじめご了承ください。