こちら
【2026年4月末OPEN!】◆磐田市千手堂◆磐田市立磐田南小学校まで徒歩3分◆
販売中
- エリア
- 静岡県| 静岡県磐田市千手堂963-2
- 販売価格
- 2,980万円(税込)
- 間取り
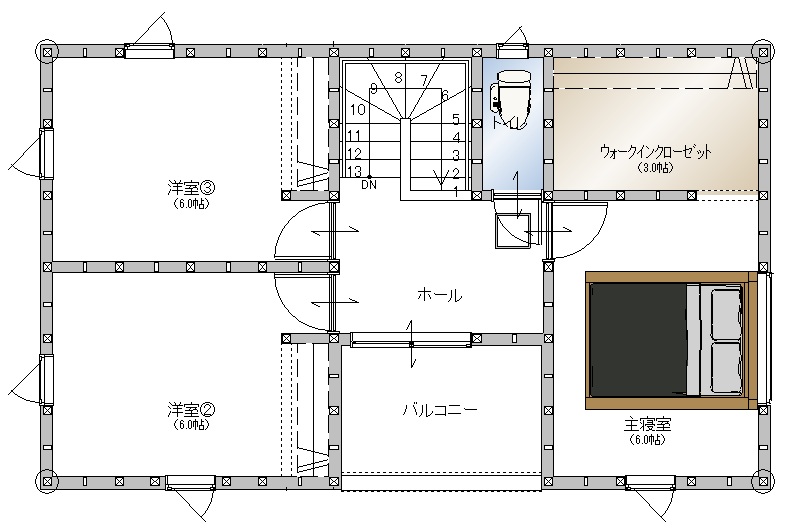
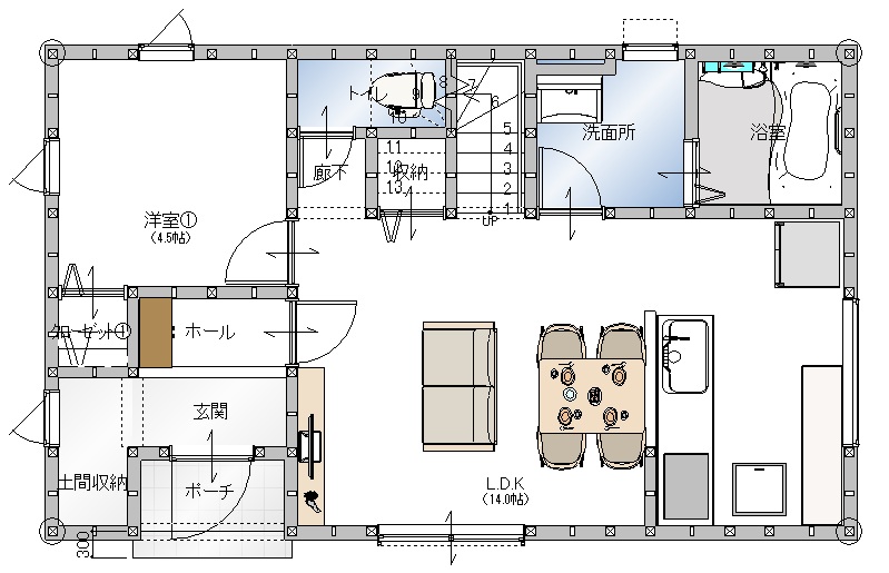
- 4LDK
- 種目
- 新築戸建
- 建物面積
- 92.73m2(登記)
- 土地面積
- 134.53m2(登記)
■物件の特徴
◆【断熱等級5】高性能樹脂窓APW 330で住まいを快適断熱化
◇40年美しさが続く外壁 光セラ
◆南面ルーフワイドバルコニー付
◇全室収納付で収納豊富な間取り
■周辺環境の特徴
◆磐田市南小学校・・・・・・・徒歩4分
◇はあとふる保育園・・・・・・徒歩6分
◆コスモス上岡田店・・・・・・徒歩13分
◇ピアゴ上岡田店・・・・・・・・徒歩7分
【売主物件】【ご相談できる店舗があります】ご融資から土地探し、物件の詳細のご案内などのご相談は店舗でも可能です。お気軽にご来場下さい。
間取り、土地区画図
周辺地図
詳細情報
| 最寄駅 | JR東海道本線「磐田」 バス11分「千手堂」 徒歩2分 |
|---|---|
| 学区 | 磐田市立磐田南小学校 240m 磐田市立南部合中学校 650m |
| 間取り | 4LDK |
| 土地面積 | 134.53m2(登記) |
| 建物面積 | 92.73m2(登記) |
| 建物構造規模 | 木造1階建 |
| 築年月(竣工月) | 2026年春予定 |
| 駐車場 | 駐車スペース3台 |
| 建ぺい率/容積率 | 60%・200% |
| 地目 | 宅地 |
| 用途地域 | 1種住居 |
| 現況 | 建築中 |
| 取引態様 | 売主 |
| 引渡し | 2026年8月予定 |
| 設備 | 公営水道、本下水、個別LPG |
| 建築確認番号 | 第2026確認建築静建住ま09814号 |
| 諸条件・相談 | 売主物件だから仲介手数料0円です♪ |
| 情報登録日 | 2026年 2月 2日 |
| 情報更新予定日 | 2026年 2月 10日 |
お問い合わせ・資料請求・見学予約
「資料請求」を行う場合、お住まいのご住所を必ずご入力の上、お進みください。
「見学予約」を行う場合、ご連絡のつくお電話番号を必ずご入力の上、お進みください。
確認ができない場合、「資料請求」「見学予約」がお受けできない場合がございます。あらかじめご了承ください。