グッドリビング株式会社

お問い合わせ・資料請求
イベント
見学会
来場予約 資料請求
お問い合わせ
こちら

2026/1/24GRAND OPEN◆北方町柱本町 C区画◆3LDK 平屋◆駐車3台可◆名古屋まで好アクセス♪

販売中

エリア
岐阜県| 岐阜県本巣郡北方町柱本南3丁目28-5
販売価格
3,190万円(税込)
間取り
3LDK
建物面積
92.33㎡(27.92坪)
土地面積
207.53㎡(62.77坪)

北方町は『街の幸福度』『街の住み心地』共に1位!(自治体ランキング)
名古屋や岐阜中心部へのアクセスの良さ、自治体の取り組みなどから人気が定着してきています♪

■物件の特徴
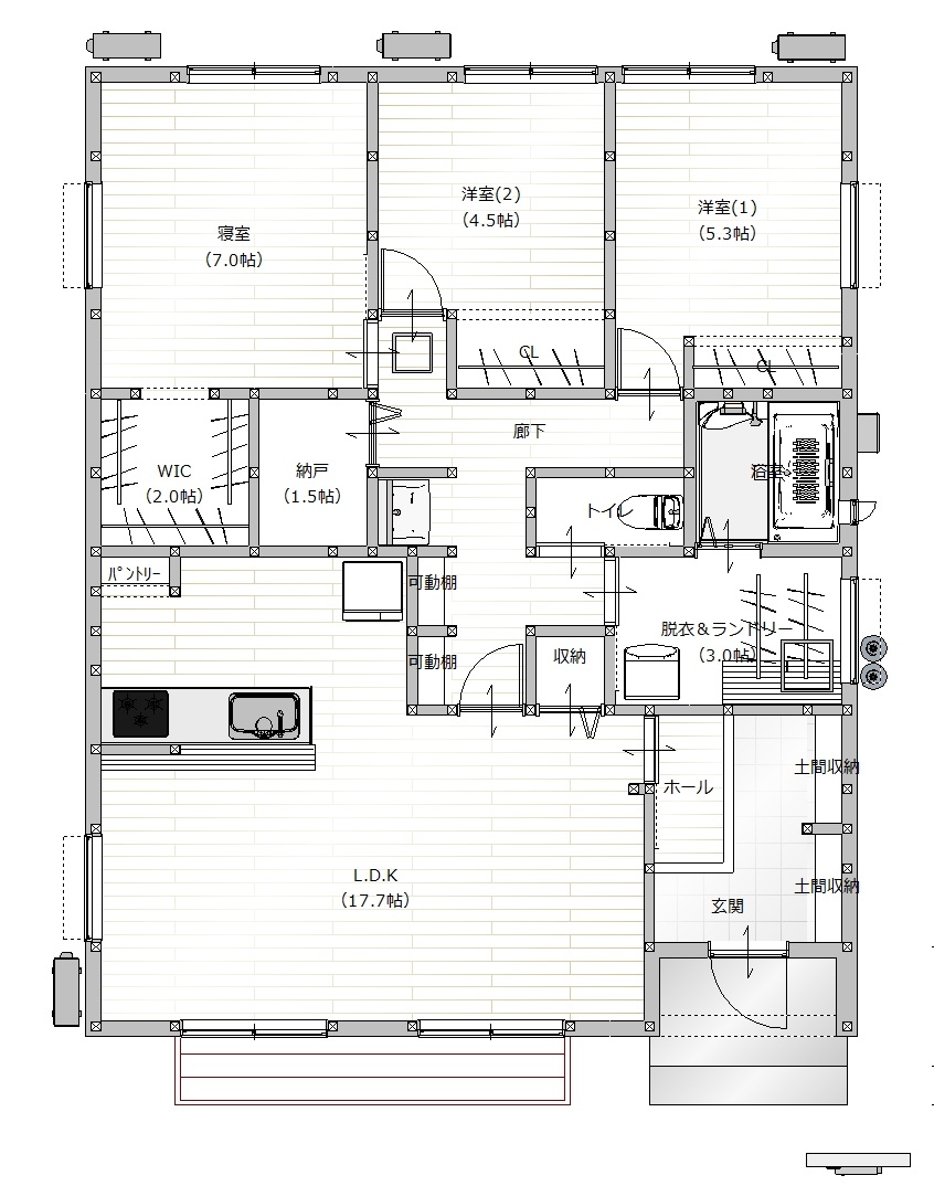
◆【全室収納】完備☆主寝室にはWICも*収納豊富
◆パントリー・納戸にもたっぷり収納可能
◇家族みんなの靴もたっぷり入る【土間収納】
◇料理中もお子さんに目が届いて安心の【対面キッチン】

【周辺環境】
◆2026年春オープン予定のイオンタウン岐阜北方まで徒歩約10分!
◆小中一貫校の南学園まで徒歩約8分
◆柱本南バス停まで徒歩約8分
◆コンビニまで徒歩約3分


【売主物件】
ご融資から土地探し、物件の詳細のご案内などのご相談は店舗でも可能です。

間取り、土地区画図

周辺地図

詳細情報

最寄駅 JR東海道本線「穂積」
岐阜バス 21分「柱本南」徒歩8分
学区 小中一貫校  北方町立南学園
間取り 3LDK
土地面積 207.53㎡(62.77坪)
建物面積 92.33㎡(27.92坪)
建物構造規模 木造1階建
築年月(竣工月) 2026年1月
駐車場 3台以上
建ぺい率/容積率 60%・200%
都市計画 市街化区域
接道状況 西12m幅、南8.3m幅
地目 宅地
土地権利 所有権
用途地域 2種住居
現況 新築
取引態様 売主
引き渡し 相談
設備 公営水道、本下水、都市ガス
特徴 地盤調査済 / 年内引渡可 / 駐車3台以上可 / 土地50坪以上 / 省エネ給湯器 / スーパー 徒歩10分以内 / 市街地が近い / 南向き / システムキッチン / 浴室乾燥機 / 陽当り良好 / 全居室収納 / LDK15畳以上 / 前道6m以上 / 和室 / 整形地 / シャワー付洗面化粧台 / 対面式キッチン / トイレ2ヶ所 / 浴室1坪以上 / 2階建 / 温水洗浄便座 / 床下収納 / 浴室に窓 / TVモニタ付インターホン / ウォークインクローゼット / リビング階段 / 全居室複層ガラスか複層サッシ / シューズインクローク / 小学校 徒歩10分以内 / 区画整理地内 / 食器洗乾燥機 / 浄水器 / スマートキー
諸条件・相談 売主物件だから仲介手数料0円です♪
情報登録日 2026年1月30日
物件一覧へ

お問い合わせ・資料請求・見学予約

「資料請求」を行う場合、お住まいのご住所を必ずご入力の上、お進みください。
「見学予約」を行う場合、ご連絡のつくお電話番号を必ずご入力の上、お進みください。
確認ができない場合、「資料請求」「見学予約」がお受けできない場合がございます。あらかじめご了承ください。

岐阜店

第一希望日

第二希望日

 - 
※お問い合わせの内容の中にURLが含まれていますと送信できませんので、テキストのみご記入ください。

個人情報の取扱いについては「プライバシーポリシー」をご参照ください。

PAGE TOP