COLUMN コラム
平屋住宅の中でも、近年人気を集めているのが「コの字型間取り」です。
建物で中庭を囲むようなレイアウトは、開放感とプライバシー性を両立できると注目されています。
一方で、「不便感はないのか?」「建築コストは高くなるのでは」といった不安を感じている方もいるのではないでしょうか。
コの字型の平屋は、間取りの工夫や敷地条件によって住み心地が大きく左右されるため、事前にポイントを押さえることが重要です。
この記事では、メリット・デメリットを整理しながら、具体的な間取りプランや中庭の活用方法、後悔しないための設計のコツまで詳しく解説します。
これから平屋を考えている方は、ぜひ理想の家づくりの参考にしてみてください。
コの字型間取りの魅力とは?特徴と基本を解説

コの字型間取りは、中庭を囲む配置によって光や風を取り込みやすく、プライバシーにも配慮しやすいのが魅力です。ここでは、平屋のコの字型間取りの魅力と特徴について詳しく解説します。
コの字型間取りの特徴
コの字型間取りは、建物をコの字に配置し、中央に中庭を設けるのが大きな特徴です。
外側に対しては視線を遮りつつ、内側にはしっかりと開かれた空間をつくれるため、プライバシーを守りながら光や風を取り込めます。
特に周囲に住宅が多い場所では、隣家からの視線をやわらかく避けながら、明るい住まいを実現できます。
リビングや各居室を中庭に向けて配置すれば、家のどこにいても自然光を感じられるのも魅力のひとつです。
平屋とコの字型の相性
コの字型間取りは、ワンフロアで生活が完結する平屋と非常に相性の良いレイアウトです。
上下階の移動がない平屋では、中庭を中心とした動線を無理なく取り入れやすく、生活のしやすさにもつながります。
たとえば、リビングから中庭へそのまま出られるようにすれば、室内と屋外が自然につながり、日常の中で外の空気を感じられます。
また、窓の取り方や軒の出し方を工夫すれば、光や風の取り込みもより効果的です。
平屋×コの字型の間取りは、住まいの魅力をより引き出せる組み合わせと言えるでしょう。
他の間取り(ロの字型・L字型)との違い
コの字型間取りは、ロの字型やL字型と比べると、ほどよい囲まれ感と開放感のバランスが取りやすい形です。
ロの字型は中庭をぐるりと囲むため、外からの視線をしっかり遮れる反面、風の通り道が限られたり、動線が長くなる可能性があります。
一方、L字型は外とのつながりが強く開放的ですが、その分プライバシーの確保には工夫が必要です。
その点、コの字型は三方向で中庭を囲みつつ一方向を開くため、光や風を取り込みながら適度な囲まれ感を確保しやすいでしょう。
それぞれの特徴を理解しながら、自分たちの暮らしに合う形を選ぶことが大切です。
コの字型平屋のメリット

コの字型平屋は、中庭を中心とした配置により光や風を取り込みやすく、外からの視線にも配慮しやすいのが大きな魅力です。ここでは、コの字型平屋のメリットについて詳しく解説します。
採光・通風に優れている
コの字型平屋の大きな魅力のひとつが、採光と通風の取りやすさです。
建物の中央に中庭を設けることで、外壁に面する開口部が増え、家全体に光が届きやすくなります。
特に平屋は上下階の影響を受けにくいため、中庭からの光を各部屋にしっかり取り込めるのが特徴です。
また、窓を対面に配置しやすいため、風の通り道を計画的につくることもできます。
周囲を建物に囲まれた敷地でも、安定した明るさと風通しを確保できるのは、大きなメリットといえるでしょう。
プライバシーを確保しやすい
コの字型の間取りは、外に対して閉じつつ内側に開く構造のため、プライバシーを守りやすい特徴があります。
中庭を囲むように居室を配置すれば、主要な開口部を内側に向けることができ、道路や隣家からの視線を自然に避けられます。
また、小さな子どもがいる家庭でも、外から見えにくい環境で遊ばせることができるため安心です。
住宅密集地や通行量の多い立地でも、開放感とプライバシーを両立しやすいのは、コの字型ならではの魅力といえます。
庭との繋がりを作りやすい
コの字型平屋は、暮らしの中で庭と室内の距離が近く感じやすい間取りです。
中庭に面してリビングやダイニングを配置すれば、室内にいながら外の景色を楽しむことができ、日常にゆとりが生まれるでしょう。
また、ウッドデッキやタイルテラスを設ければ、食事やくつろぎの場として活用することも可能です。
洗濯動線として中庭を取り入れれば、家事のしやすさにも繋がります。
単なる庭ではなく、暮らしの一部として活かせる空間をつくれることが、コの字型平屋の大きな魅力です。
家族の気配が感じられる間取りになる
コの字型平屋は、中庭を中心に各空間がゆるやかにつながるため、家族の気配を感じやすい間取りになります。
各部屋が完全に分断されることなく、中庭を通じて視線や動線がほどよく交わるため、自然なコミュニケーションが生まれやすくなります。
平屋はもともと家族の距離が近くなりやすい住まいですが、コの字型にすることで特徴がより活かされるでしょう。
コの字型平屋のデメリット

コの字型平屋は魅力の多い間取りですが、コストや動線、敷地条件には注意が必要です。ここでは、コの字型平屋のデメリットや注意点について詳しく解説します。
建築コストが高くなる可能性がある
コの字型平屋は、一般的な四角い間取りと比べて外周が長くなりやすい傾向があります。
そのため、基礎や外壁の面積が増え、材料費や施工費が上がるケースも多いです。
また、中庭に面して大きな窓を設けることも多く、サッシやガラスの費用がかさむことも少なくありません。
建物の形が複雑になれば施工の手間も増え、コストに影響する場合もあります。
ただし、コスト面は建物の性能や仕様の選び方によって調整することも可能です。
優先順位を整理しながら、無理のない予算配分を考えることが大切です。
動線が長くなりやすい
コの字型の配置は、中庭を囲むように各部屋が並ぶため、移動距離が長くなりやすい点に注意が必要です。
平屋はワンフロアで生活が完結する分、動線の良し悪しが暮らしやすさに直結します。
そのため、見た目のバランスだけでなく、実際の生活の動きをイメージしながら配置を考えることが重要です。
回遊動線を取り入れたり、水まわりをまとめたりすれば、移動のしやすさは大きく改善できます。
設計段階で丁寧に検討しておきたいポイントです。
広めの敷地面積が必要になる
コの字型平屋は中庭を取り入れる分、ある程度の土地の広さ(坪数)が求められます。
特に中庭の広さが十分でないと、採光や通風の効果が十分に得られず、せっかくのメリットが活かしきれないことも。
建物の配置によっては駐車スペースやアプローチの確保が難しい場合もあるため、全体のバランスを見ながら設計する必要があるでしょう。
コの字型平屋の間取りプラン例
ここでは、コの字型平屋の間取りプラン例を紹介します。コの字型のマイホームを考えている方は、ぜひ参考にしてみてください。
プラン①:中庭とつながる開放的な4LDKプラン

リビングを中心に各居室へアクセスできる、廊下のない効率的な4LDKプランです。
自然と家族が顔を合わせやすく、コミュニケーションが取りやすい間取りになっています。
リビングには中庭へとつながる大開口の窓を2つ設けており、光と風をたっぷり取り込める明るい空間が広がります。
視線が外へ抜けることで、実際の面積以上の開放感を感じられるのも魅力です。
キッチンにはアイランド型を採用し、リビング全体を見渡せる配置に。
調理中でも家族の様子を感じられるため、小さなお子さまがいる家庭にも安心です。
中庭と一体化したリビング空間と回遊性のある動線が、心地よさと暮らしやすさを両立させたプランです。
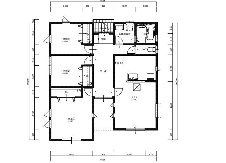
プラン②:中庭を囲む落ち着きのある3LDKプラン

住宅の中心に廊下を配置し、周囲を囲むようにリビングと主寝室をレイアウトした3LDKプランです。
中庭は廊下・リビング・主寝室に囲まれる形となっており、外からの視線を気にせず過ごせる、落ち着いたプライベート空間を作れます
中庭はコンパクトな広さですが、ウッドデッキをぴったりと収められるため、無駄のない使いやすい外部空間として活用できます。
リビングからフラットに繋げれば、ちょっとしたくつろぎスペースや外遊びの場としても活躍するでしょう。
また、子ども部屋として想定した2つの居室はあえて中庭に面さず、リビングとは反対側の配置に。
生活音や視線をほどよく分けられるため、家族それぞれの時間を大切にできます。
リビングと各居室を廊下でゆるやかに分けた、メリハリのある暮らしができるプランです。
中庭の設計と活用のアイデア

中庭は、設計の工夫次第で家事やくつろぎの場として幅広く活用できます。用途を明確にしながら、目隠しや動線も含めて計画することが、使いやすさを高めるポイントです。
洗濯・物干しスペースとして
中庭は、洗濯動線を整えるうえでとても使いやすい場所です。
外に面していながらも視線が入りにくいため、周囲を気にせず洗濯物を干せる安心感があります。
洗面所や脱衣所、収納から近い配置にすれば、洗う・干す・取り込むといった流れがスムーズになり、日々の負担を軽減できます。
また、軒を少し深くしたり、部分的に屋根を設けたりすれば、急な雨でも安心です。
中庭は、工夫次第で日々の家事負担を軽減する場として、非常に実用性の高い場所となるでしょう。
子どもの遊び場・アウトドアリビングとして
中庭は、家族で過ごす時間を豊かにするアウトドア空間としても活用できます。
外部からの視線が届きにくいため、小さな子どもが安心して遊べる場所として取り入れやすいのが魅力です。
ウッドデッキなどでリビングとフラットに繋げれば、室内の延長のように使うことができ、天気の良い日には食事やくつろぎのスペースとしても活躍します。
また、家庭菜園やガーデニングを楽しむ場としても取り入れやすく、暮らしに自然の要素を加えることもできます。
家族の暮らしに合わせて柔軟に使い方を変えられるのも、中庭の魅力のひとつです。
目隠しやフェンスを活用する
中庭を快適に使うためには、目隠しやフェンスも重要なポイントです。
コの字型の配置である程度のプライバシーは確保されますが、隣家の窓や周囲の環境によっては視線が気になる場合もあります。
そのため、フェンスや植栽を組み合わせて視線をやわらかく遮る工夫が必要です。
高さのあるフェンスだけでなく、ルーバーや格子状のデザインを取り入れれば、圧迫感を抑えながらプライバシーも確保できます。
また、防犯面も考慮し、死角をつくらない配置にすることも大切です。
採光や通風とのバランスを考えながら、居心地のよい中庭空間に仕上げましょう。
コの字型平屋を設計する際のポイント

コの字型平屋は、中庭を囲む特性を活かしながら、動線や採光、建物とのバランスを丁寧に整えることが重要です。ここでは、コの字型平屋を設計する際のポイントを解説しますので、ぜひ参考にしてみてください。
動線を意識して配置する
コの字型平屋では、建物が中庭を囲む回遊性のある動線をつくりやすい反面、配置を誤ると移動距離が長くなりやすい点に注意が必要です。
玄関からリビング、水回り、個室へと自然につながる流れを意識しましょう。
また、中庭を介して各空間をゆるやかに繋げれば、閉じすぎない開放感も生まれます。
生活動線と家事動線を分けつつ、必要に応じて交差できるようにすることがポイントです。
【具体例】
- 玄関→ファミリークローゼット→洗面脱衣→浴室へと繋がる帰宅動線を作る
- キッチンから中庭とランドリールームへ直接出られる家事動線を作る
- リビングを中心に各個室へ回遊できる間取り配置をする
- 中庭を通ってショートカットできる裏動線の確保する など
採光・風通しを最大限に活かす
コの字型の間取りは、中庭を通じて光と風を取り込める点が大きな魅力です。
ただし、建物の配置によっては光が入りにくくなったり、風が抜けにくくなったりするため、開口部の設計が重要になります。
中庭側に大きな窓を設けるだけでなく、風の入口と出口を意識して窓を配置し、室内に自然な空気の流れを作りましょう。
また、軒や庇を設ければ、季節ごとの日差しもコントロールしやすくなります。
【具体例】
- リビングの南側を中庭に向け、大開口サッシを配置する
- 対角線上に窓を設けて風が抜ける道を作る
- 中庭に面して複数の部屋を配置し、どこからでも光を取り込む配置にする
- 軒や庇を設けて夏の日差しを遮りつつ冬の光を取り入れる
中庭の広さと建物のバランスを考慮する
中庭の広さは、コの字型平屋の印象や使い勝手に大きく影響します。
広く取りすぎると建物自体の面積が圧迫され、室内が狭くなるになることも。
反対に狭すぎると採光や風通しの効果が十分に得られず、中庭としての魅力も薄れてしまいます。
そのため、敷地条件や建物全体のボリュームとのバランスを見ながら、適切なサイズを見極めることが重要です。
視線の抜けや使い方までイメージして設計すると、より満足度の高い中庭になるでしょう。
【具体例】
- LDKに隣接した約6〜8帖程度の中庭にする
- コンパクトな敷地では細長い中庭を設けて光と風を確保する
- 中庭を囲む建物の奥行きを抑え、圧迫感を軽減する
- デッキやテラスを設けて、室内と一体的に使える広さに調整する
コの字型平屋の実例を紹介

落ち着いたグレーを基調にまとめた外観は、シンプルでありながらも洗練された印象を与える片流れ屋根のデザイン。直線的なフォルムが際立ち、周囲の景観にもなじみやすいモダンな佇まいに仕上がっています。

玄関を開けると、視線の先には中庭が広がり、自然光がやさしく差し込みます。閉じがちな玄関空間に明るさと抜け感が生まれ、帰宅した瞬間にほっとできる心地よさを感じられる作りです。来客時にも印象的な空間となり、住まい全体の雰囲気を引き立てています。

リビングダイニングは、中庭に面した2方向の掃き出し窓からたっぷりと光を取り込める設計。時間帯によって表情が変わるやわらかな光が室内に広がり、日中は照明に頼らず過ごせるほどの明るさを確保しています。中庭との繋がりによって、実際の広さ以上の開放感が感じられるのもポイントです。

キッチンには下がり天井を採用し、空間にほどよいメリハリをプラス。素材や照明の工夫によって、ダイニングやリビングとは少し異なる雰囲気を演出し、日常の中にさりげない特別感を添えています。暮らしやすさとデザイン性をバランスよく取り入れた、おしゃれな平屋の事例となっています。
こちらの住まい▶中庭のある平屋の住まい | グッドリビング株式会社
まとめ
今回は、コの字型平屋のメリット・デメリットや、設計時のポイントについて解説しました。
コの字型平屋は、中庭を取り入れることで、明るさとプライバシーを両立できる住まいです。
外からの視線を抑えつつ、室内に光や風を取り込めるのが大きな魅力といえるでしょう。
そのうえで、動線や中庭の配置、広さのバランスを丁寧に設計することが、暮らしやすさを左右する重要なポイントになります。
これから住まいづくりを考える方は、自分たちの暮らし方に合った中庭の使い方をイメージしながら、最適な間取りを検討してみてはいかがでしょうか。
当グッドリビングでも、平屋に関する無料相談を受け付けています。
平屋の建築実績も多数あるため、コの字型間取りや、中庭を設ける間取りなど実現したいマイホームの形がある方はぜひモデルハウスまで見学にお越しください。
経験豊富なスタッフと一緒に家族のライフスタイルに合ったマイホームを考えましょう!
下記ホームページよりご連絡をお待ちしております。
▼ホームページはこちら▼

監修者情報
グッドリビング広報部

累計15000棟以上の実績があるグッドリビングが、WEBサイト上の情報をまとめただけの簡易的な記事でなく、実際のお客様とのコミュニケーションの中である悩みや疑問をテーマにしています。真剣に新築注文住宅を検討している読者に役立つ、価値ある中身の濃い情報をお届けしています。