COLUMN コラム
一人暮らしの住まいとして注目されているのが「ワンルーム平屋」です。
部屋を細かく分けず、ひとつながりの空間で暮らすこの住まいは、シンプルで無駄のない生活を叶えたい方から関心を集めています。
ただその一方で、「本当に快適に暮らせるのか」「広さは足りるのか」「防犯や収納は大丈夫なのか」といった不安を感じている方も多いのではないでしょうか。
この記事では、ワンルーム平屋の基本的な特徴から、最適な広さや費用相場、後悔しないための間取りや設計のポイントまでを、工務店目線でわかりやすく解説します。
ワンルーム平屋を検討中の方は、ぜひ参考にしてみてください。
ワンルーム平屋の魅力とは?選ばれる理由と住まいの特徴

ワンルーム平屋は、空間を一体で使うことで暮らしやすさを高めた住まいです。動線や管理のしやすさが評価され、一人暮らしやシニア層を中心に選ばれています。ここでは、ワンルーム平屋の基本的な特徴について解説します。
ワンルーム平屋とはどんな住まい?
ワンルーム平屋とは、リビングや寝室を壁で細かく区切らず、ひとつの空間として構成した平屋住宅のことです。
生活に必要な機能を最小限の動線でまとめることで、無駄のない暮らしを実現できます。
また、建物全体を見渡しやすく、家のどこにいても生活の気配を感じられるため、安心感につながるという声もあります。
必要な機能を一つの空間にまとめ、シンプルな暮らしを実現できる住まいと言えるでしょう。
シンプルな間取りがもたらす暮らしやすさ
ワンルーム平屋の大きな魅力は、生活動線が非常に効率的になるところです。
移動距離が少ないため、家事や身支度にかかる負担を抑えやすくなります。
また、仕切りが少ないことで視線が抜け、実際の広さ以上に空間を広く感じやすいでしょう。
冷暖房の効率については設計の工夫が必要ですが、断熱性能を高めることで快適性と省エネ性の両立も可能です。
暮らしのリズムが整いやすく、生活を安定させやすいのがシンプルな間取りならではの良さと言えます。
一人暮らしやシニア層に選ばれる理由
ワンルーム平屋は、一人暮らしやシニア層の住まいとして現実的です。
階段がなく、段差も抑えやすいため、将来的な身体負担を見据えた住まいとして安心できます。
また、部屋数を増やさないことで建築費や維持費を抑えやすく、年金生活や将来の支出を意識できるのも支持される理由。
必要以上に広さを求めず、身の丈に合った住まいを求める層から選ばれています。
ワンルーム平屋の施工事例
ここでは、実際に建てられたコンパクトな平屋の事例を紹介します。ぜひワンルーム平屋を建てる際の参考にしてみてください。
①グレーの外観に映える、明るさと心地よさを備えたシンプルな住まい

外観はグレーを基調とし、片流れ屋根を採用したすっきりとした佇まいが印象的な住まいです。無駄を削ぎ落としたデザインの中に、落ち着きとほどよい個性を感じさせ、周囲の景観にも自然になじみます。

室内に入ると、白を基調とした明るい空間が広がり、木目調の床がやさしく温もりを添えています。シンプルでありながらも冷たさを感じさせず、毎日の暮らしを心地よく包み込む内装です。

キッチンは壁付けとすることで、空間を広く使いやすく計画しました。動線が整理され、生活スペースをすっきり保ちやすいのも魅力です。コンパクトながらも、住まう人の暮らしに寄り添った、バランスの良い住まいとなっています。
こちらの施工事例:コンパクトで住みやすい1LDKの平屋 | グッドリビング株式会社
②黒の外観に映える、遊び心を取り入れたコンパクトハウス

外観は黒を基調としたシックなデザインで、コンパクトな住宅ながらも存在感のある佇まいが印象的です。無駄のないフォルムに落ち着いた色合いを組み合わせることで、引き締まった外観に仕上がっています。

掃き出し窓の横にはウッドデッキを設け、庇を設置することで屋外とのつながりを自然に演出しました。天候を気にせず使える半屋外空間は、日常のくつろぎや気分転換の場として活躍します。

室内は白を基調とした壁紙で明るさを確保しつつ、キッチンと洗面台にはビビッドな赤を採用しました。空間のアクセントとして視線を引きつけ、シンプルな内装の中に個性を感じさせます。コンパクトでありながら、暮らしを楽しむ工夫が詰まった住まいです。
こちらの施工事例:最小限の住空間に、アクセントカラーで遊びを加えて… | グッドリビング株式会社
③広い敷地に映える、静かに佇む黒のコンパクト平屋

広めの敷地の中に、コンパクトな平屋を配置した住まいです。周囲との距離にゆとりがあることで、建物そのものの佇まいが引き立ち、静かで落ち着いた印象を与えます。
外観は黒を基調とし、主張しすぎないシンプルなデザインにまとめました。広い敷地との対比によって、住まいの存在感がほどよく際立ち、時間帯や光の当たり方によって表情が変わるのも魅力です。

室内は白の壁紙をベースに、暗めのブラウンの床材を合わせることで、明るさの中に落ち着きを感じられる空間としました。コンパクトでありながら、余白を楽しむ暮らしができる、静かな住まいです。
こちらの施工事例:榛原郡の平屋注文住宅実例|1LDK・50.51㎡ 白基調で清潔感ある平屋
ワンルーム平屋のプラン例
ここでは、ワンルーム平屋のプラン例を紹介します。自分が建てたい間取りを想定する際の参考にしてみてください。
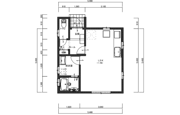
①11帖LDKを中心にした、シンプルに暮らすワンルーム平屋

生活空間をひとつにまとめた、ワンルームタイプの平屋間取りです。
LDKは11帖とコンパクトながら、仕切りを設けないことで視線が抜け、数字以上の広がりを感じられる空間となっています。
家具の配置次第で、くつろぎのスペースと食事のスペースをゆるやかに分けられるのも魅力です。
玄関のすぐ横には収納を1か所設け、靴や上着、日用品などをまとめて置けるようにしました。
最小限の広さの中に、使いやすさと心地よさを丁寧に詰め込んだ、無駄のない平屋間取りです。
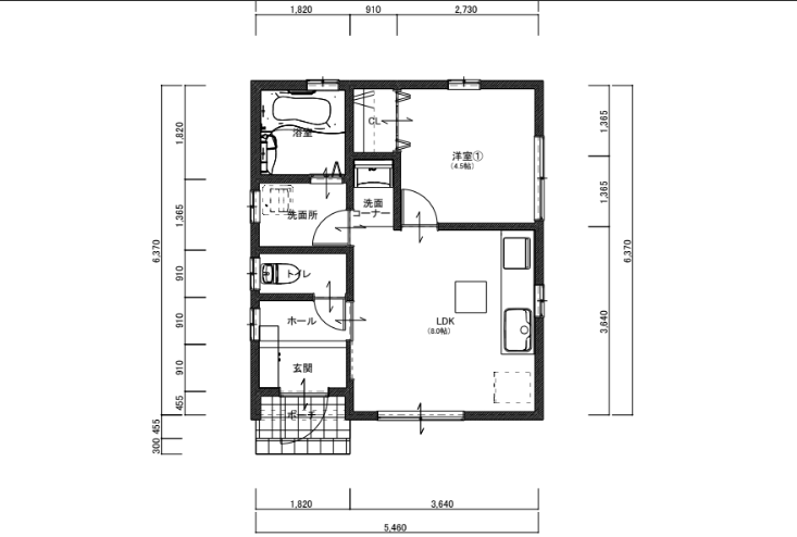
②コンパクトでも暮らしを分けられる、8帖LDK+4.5帖洋室の間取り

8帖のLDKを暮らしの中心に据え、そのすぐ横に4.5帖の洋室を配置した、コンパクトながら使い勝手の良い間取りです。
洋室にはクローゼットを備えているため、寝室としてはもちろん、収納を兼ねたプライベート空間としても無理なく使えます。
また、水まわり計画では脱衣所とは別に洗面スペースを設け、入浴中でも気兼ねなく手洗いや身支度ができるよう配慮。
来客時にも生活感が出にくく、コンパクト住宅でも暮らしの質を高めてくれる設計です。
限られた床面積の中で、「くつろぎ」「休む」「整える」をきちんと分けた、バランスの取れた間取りといえるでしょう。
ワンルーム平屋のメリット・デメリット

ワンルーム平屋は、暮らしをできるだけシンプルにしたい人にとって魅力的な住まいです。一方で、間取りの特性上、注意しておきたい部分もあります。ここでは、ワンルーム平屋のメリットとデメリットについて解説します。
ワンルーム平屋のメリット
ワンルーム平屋の良さは、無駄を省いた間取りだからこそ得られる暮らしやすさです。動線やコスト、空間の使い方において、分かりやすいメリットがあります。
生活動線がシンプルで暮らしやすい
生活に必要な機能が一つの空間に集約されるワンルーム平屋は、移動距離が短くなります。
キッチンからリビング、寝る場所までを行き来する際の動作が少なく、日常生活の負担を抑えやすいのが特徴です。
特に一人暮らしやシニア層にとっては、無理のない動線が安心感につながりやすいでしょう。
建築費・維持費を抑えやすい
ワンルーム平屋は、部屋数や建物規模を抑えられるため、建築費をコントロールしやすい住まいです。
間仕切り壁や建具が少ない分、工事の手間や材料費を抑えられるケースも多くあります。
また、将来的なメンテナンスにおいても、管理する設備や空間が少ないため費用の見通しが立てやすいと言えます。
空間を広く感じやすい
ワンルーム平屋では、視線を遮る壁が少ないため、実際の床面積以上に空間を広く感じやすいです。
天井を高くしたり、勾配天井を取り入れたりすれば、開放感はさらに高まるでしょう。
家具配置の自由度も高く、ライフスタイルに合わせて空間の使い方を変えられるのも魅力の一つです。
ワンルーム平屋のデメリット・注意点
ワンルーム平屋にはメリットがある一方で、空間を分けないことによる注意点もあります。事前にデメリットを把握しておき、設計段階から対策することが重要です。
プライバシーの確保が難しい
ワンルーム平屋は、生活空間が一体であるため、視線や生活の気配が遮りにくいと言えます。
来客時やオンライン会議など、状況によっては落ち着かない場面もあるでしょう。
また、生活と就寝の切り替えがしづらいと感じる人もいます。
完全な個室を設けない代わりに、家具の配置やカーテン、部分的な間仕切りなどで緩やかに空間を分ける工夫が必要です。
収納不足になりやすい
ワンルーム平屋は、部屋数が少ない分、収納スペースを確保しにくい傾向があります。
特に一人暮らしでも、季節用品や趣味の道具などは意外と量が増えるものです。
暮らし始めてから困らないよう、持ち物の量を想定した十分な設計が必要になるでしょう。
生活音・においが広がりやすい
ワンルーム平屋は、キッチンの調理音やにおい、家電の稼働音などが空間全体に広がることになります。
特に在宅時間が長い場合、音やにおいがストレスの要因になることも。
換気性能の高い設備を選んだり、寝る位置とキッチンの距離を離すなど工夫すれば、影響を抑えることは可能です。
快適に暮らすためには、設備選びと間取りのバランスが重要になるでしょう。
ワンルーム平屋の建築費用・広さの目安

ワンルーム平屋は、必要最小限の広さとコストで計画しやすい住まいです。快適に暮らすための坪数感や費用相場、無理なく予算を抑える考え方を整理しておきましょう。
必要な坪数の目安
一人暮らし向けのワンルーム平屋では、10〜15坪程度がひとつの目安とされています。
10坪前後であれば、寝る・くつろぐ・食事を一体でまとめたミニマルな暮らしが可能です。
12〜15坪になれば、水回りや収納にゆとりを持たせることができ、生活の快適さが高くなるでしょう。
建築費用の相場
マイホームの費用を考える際は、本体工事費だけでなく、付帯工事費や諸費用、土地代を含めた総額で把握することが重要です。
建物代金の他にも費用が発生するため、想定より高く感じるケースも少なくありません。
まず、本体工事費は800万〜1,500万円前後がひとつの目安です。
延床面積が10〜15坪程度の住宅なら、設備や仕様を抑えれば1,000万円前後で計画できます。
次に、付帯工事費や諸費用を含めた費用感を整理すると、以下のようになります。
| 項目 | 費用の目安 |
| 本体工事費 | 800万〜1,500万円 |
| 付帯工事費(外構・給排水など) | 100万〜300万円 |
| 諸費用(登記・申請・保険等) | 50万〜150万円 |
| 建物総額 | 950万〜1,950万円 |
| 土地代(地方) | 200万〜600万円 |
| 土地代(都市近郊) | 800万〜1,500万円 |
| 土地+建物総額 | 1,200万〜3,400万円程度 |
土地代は地域差が非常に大きく、総額を左右する最大の要素です。
そのため、「建物はいくらで建てられるか」だけでなく、「土地を含めていくらまで許容できるか」を先に整理しておくと、現実的な計画が立てやすくなります。
コストを抑えるためには
ワンルーム平屋でコストを抑えるには、「広さを欲張らないこと」が最も効果的です。
数坪の違いでも、建築費には大きく影響します。
また、間仕切りを減らし、設備や建材の種類を絞れば、施工の手間と費用も抑えやすくなります。
初期費用だけでなく、将来の光熱費やメンテナンスまで含めて考えることが、無理のない家づくりのポイントです。
ワンルーム平屋を建てる際の設計ポイント

ワンルーム平屋は間取りがシンプルな分、設計の工夫が暮らしやすさを大きく左右します。採光や防犯、プライバシー、将来性までをバランスよく整えることが大切です。ここでは、ワンルーム平屋を建てる際に気を付けたい設計のポイントと、具体的な設計例を解説しますので参考にしてみてください。
採光・通風・視線対策を意識する
ワンルーム平屋では、ひとつの空間で一日の多くの時間を過ごすことになります。
そのため、室内が暗い、風がこもる、外からの視線が気になるといった小さな不満が、日々積み重なりやすい点に注意が必要です。
採光や通風を確保するだけでなく、「落ち着いて過ごせるかどうか」という視点で窓の配置やサイズを考えてみてください。
【具体的な設計例】
- 南側は掃き出し窓にせずに腰高窓と高窓を組み合わせて光を拡散させる
- 隣地に近い面には地窓やスリット窓を採用して視線と風をコントロールする
- 窓を対角線上に配置して室内に自然な風の流れをつくる
- 軒や庇を設けて夏の日差しを抑える
防犯性を高める
ワンルーム平屋は、生活空間がひとつにつながっているため、防犯面への不安を感じやすい住まいでもあります。
ただし、過度に閉鎖的にする必要はなく、設計の工夫次第で安心感を高めることが可能です。
大切なのは「侵入しにくい家」にすることと、「侵入されにくい環境」を整えることです。
建物と外構を一体として考えましょう。
【具体的な設計例】
- 掃き出し窓の数を抑えて侵入口を最小限にする
- 人目につきにくい窓には防犯ガラスや補助錠を採用する
- 勝手口を設けず出入口を玄関に集約する
- 外構は高い塀で囲わず周囲からの視線が適度に届く配置にする
来客やプライバシーに配慮する
ワンルーム平屋では、来客時に生活空間がそのまま見えてしまうことを不安に感じる方も多いです。
ただし、必ずしも壁で仕切る必要はなく、「視線の抜け方」を調整するだけでも印象は大きく変わります。
日常と来客時の両方を想定し、無理のない区切り方を考えましょう。
【具体的な設計例】
- 玄関と居住空間の間に収納や腰壁を設ける
- 就寝スペースを玄関や窓から遠ざけて配置する
- 天井高さや床材を変えて空間に役割を持たせる
- 家具配置を前提に視線が直線的に抜けないレイアウトにする
将来的な暮らしの変化を見据える
ワンルーム平屋は、今の暮らしに合わせやすいだけでなく、将来の変化にも対応しやすい住まいと言えます。
ただし、柔軟性を活かすには、設計段階から余白を残しておくことが必要です。
年齢を重ねた後の暮らしや、生活スタイルの変化を想定しておきましょう。
【具体的な設計例】
- 構造壁を最小限にして後から間仕切りを設けられる設計にする
- 水回りを集約して将来的な動線変更をしやすくする
- 床段差をなくして通路幅にゆとりを持たせる
- コンセントや照明を多めに設計して用途変更に対応する
ワンルーム平屋に関するよくある質問

ワンルーム平屋を検討する際によく挙がる疑問について、広さや防犯から費用面まで解説します。
何坪くらいあれば快適に暮らせますか?
一人暮らしのワンルーム平屋であれば、10〜15坪程度が快適さとコンパクトさのバランスが取りやすい広さとされています。
10坪前後でも生活は可能ですが、収納や水回りに余裕を持たせたい場合は12坪以上あると安心です。
ただし、重要なのは坪数そのものよりも空間の使い方です。
天井を高くする、収納を壁面にまとめるなどの工夫によって、同じ広さでも開放感は大きく変わります。
数字だけで判断せず、間取り全体で考えることが大切です。
防犯面で不安はありませんか?
ワンルーム平屋について防犯面を心配する声もありますが、設計段階から対策をすれば、過度に不安視する必要はありません。
侵入されやすい掃き出し窓を減らす、防犯ガラスや補助錠を採用するなどの基本対策は有効です。
また、外構も重要なポイントです。
周囲から適度に視線が届く配置にすれば、不審者が近づきにくい環境を作ることができます。
建物と敷地を一体として家づくりを考えましょう。
どんな人に向いていますか?
ワンルーム平屋は、シンプルな暮らしを好む方に向いている住まいです。
持ち物が比較的少なく、掃除や家事の負担を抑えたい一人暮らしの方には特に相性が良いと言えます。
また、階段がなく生活動線が短いため、将来を見据えた住まいとしてシニア層から選ばれるケースも増えています。
ただし、来客が多い方や空間を細かく分けたい方には工夫が必要です。
自分の生活スタイルを見返して、向き不向きを判断してみてください。
収納はどれくらい確保できますか?物が多くても大丈夫ですか?
延床面積が限られるため、収納量そのものは多くありませんが、壁面収納やロフト収納を取り入れることで補うことが可能です。
ただし、収納を増やしすぎると、居住スペースが圧迫されることになります。
そのため、建築を機に持ち物を見直し、現実的な収納量とのバランスを考えましょう。
光熱費は安くなりますか?
ワンルーム平屋は、延床面積が小さいため、冷暖房効率が良く、光熱費を抑えやすいと言えます。
特に断熱性能が高い住宅であれば、冷暖房の使用量を最小限に抑えることができるでしょう。
どの住宅にも言えますが、建築時に性能へ投資する分だけ長期的なランニングコストの軽減に繋がります。
まとめ
今回は、ワンルーム平屋のメリット・デメリットや、設計時のポイントについて解説しました。
ワンルーム平屋は、一人暮らしにちょうど良い広さとシンプルな動線を備え、無理のないコストで実現しやすい住まいです。
空間をひとつにまとめることで、暮らしの管理がしやすく、将来を見据えた住まいとしても選ばれています。
一方で、快適に暮らすためには、防犯やプライバシーへの配慮など、設計段階で整理しておくべきポイントも少なくありません。
ワンルーム平屋を検討する際は、「自分の暮らし方に本当に合うか」を軸に考えることが大切です。
気になる点があれば、実例を見たり、工務店に相談したりしながら、具体的な住まいのイメージを深めてみてください。
当グッドリビングでも、平屋に関する無料相談を承っています。
平屋の施工実績もありますので、「ワンルーム平屋を検討中の方」「2人暮らしの平屋を探している方」など様々なお客様のニーズに合った住まいをご提案できます!
ぜひ一度モデルハウスまでお越しください。
下記ホームページよりご連絡をお待ちしております。
▼ホームページはこちら▼

監修者情報
グッドリビング広報部

累計15000棟以上の実績があるグッドリビングが、WEBサイト上の情報をまとめただけの簡易的な記事でなく、実際のお客様とのコミュニケーションの中である悩みや疑問をテーマにしています。真剣に新築注文住宅を検討している読者に役立つ、価値ある中身の濃い情報をお届けしています。